巴塞罗纳一处阁楼
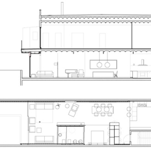
简介:YLAB arquitectos装修一个100平方米的公寓,有巴塞罗那的传统老建筑中的一个大露台。房子非常深而窄,并在两端只有两个门面,一个是通到街上的,另一个是通往内部庭院的露台。该提案有两个主要目标:最大限度地消除 ...
|
YLAB arquitectos装修一个100平方米的公寓,有巴塞罗那的传统老建筑中的一个大露台。房子非常深而窄,并在两端只有两个门面,一个是通到街上的,另一个是通往内部庭院的露台。该提案有两个主要目标:最大限度地消除不必要分区的外墙灯光和通风,并获得一个新的分布,包含了所有年轻的主人所要求的用途:一间卧室的套房,客房浴室和卧室,一个工作室,一个厨房和一个饭厅。最大限度的照明是必要的,以实现结构的内部间隔及结构墙背后的外观,最佳的利用光。此外,由于房屋的几何状,只能非常规律的分布,却要改变它们的功能。新的分配由一个大透明的和宽敞的公共区域,和一个私人卧室套房和客用浴室形成的半封闭式样。公共区域是由门厅,餐厅,图书馆,工作室和客厅在后面的面积,并在前面的门面厨房。所有这些领域,都由坚实的砖沿着墙对齐。之间的高柜,卧室入口大厅衣柜和卧室壁橱的双重功能,包含两间浴室,这成为一个家具的一块货架在摄影棚面积。这家具隐藏了两个大的滑动木门内,让两个不同空间具有其自己的独立性:卧室,这是从公共区域隔开,成为客厅的一部分,包含一个沙发床,它也可以作为客房使用。木制的核心是一种深深的框架。跨分区用的滑动半透明的玻璃门,使照明,通风和视觉空间之间有着连接。在里面的所有内表面,包括天花板和地板,都覆盖着马赛克和镜子。 体现出了整体的透明度。结果是用光制造出明亮的和复杂的空间,做着光泽和反射的游戏。
|
已有 0 人参与
会员评论




