拉脱维亚Marupe私人住宅
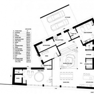
摘要: 这个建筑围绕一个不断生长的元素化的中心院落构成,设计概念是日本风格的tsubo花园。这种花园一般都种植在封闭的空间内,代表着一些重要的元素,在室外甚至是室内它都创造出自然的特质。日本花园文化总是与住宅室内 ...
这个建筑围绕一个不断生长的元素化的中心院落构成,设计概念是日本风格的tsubo花园。这种花园一般都种植在封闭的空间内,代表着一些重要的元素,在室外甚至是室内它都创造出自然的特质。日本花园文化总是与住宅室内融合,创造出娱乐空间,围绕花园的空间一般为透明空间,融合室内室外的同时也分隔室内室外,但是这个项目的主人拒绝了花园空间,取而代之的是座椅空间,住宅位于附近街道边,朝着垂直方向延伸,南侧的二楼空间更加向内靠,从而获得直接的阳光。二楼卧室有着开阔的绿色露台,建筑外表分布丝丝的黑木条,但它们完美融合,形成统一的整体。
|
已有 0 人参与
会员评论




