公租房建设今后将像“搭积木”
|
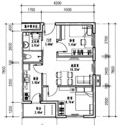
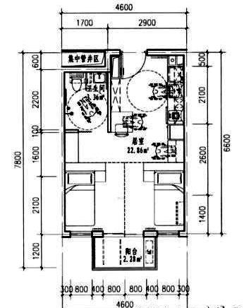
(图片来源:北京青年报) 市住建委、市规划委共同发布《北京市公租房住房标准设计图集》 昨日,北京市住建委、市规划委共同发布了《北京市公租房住房标准设计图集》,这个由12家设计院参与、历时一年多时间设计出来的标准化手册,有可能大幅加快北京公租房标准化、模块化建设的步伐。 21个标准户型 这一《图集》由中国建筑设计研究院编制,共包括21种标准户型组合平面示例、4种标准户型厨房和3种标准卫生间及其组合设计方案。 此次公布的公租房设计图集中,根据不同人群,以及多样化需求的特点,每套居住面积从30平米至60平米不等,有1至2人居住的30平米单居、2至3人居住的40平米小户型、3至4人居住的50平米中户型、4人以上居住的60平米大户型。其中小户型可根据不同需求进行自由拆分和组合。 为了节省面积,提高使用率,一些小户型的就餐桌椅被设计成折叠的,不用的时候可以悬挂在墙上。“省去天然气管道,可以在有限的空间内提供更多的储藏空间。”设计方国家住宅与居住环境工程技术研究中心副总工何建清告诉记者,部分户型设计采用了电灶,尤其是居住人数较少的户型。 在中国建筑设计研究院的住宅实验室看到了厨房的实例展示,为了节省空间,公租房的抽油烟机设计为侧吸抽油烟机,这样基本做到了和橱柜一样进深。通过这些细节设计,公租房的空间使用率大幅提高,其中最高达1.8倍,最低的也有提升62%。
(图片来源:北京青年报) 小户型照顾老年需求 在本次公布的公租房设计方案中,对老年人和残疾人的考虑得到了重点突出,体现了城市管理的人性关怀。 以40平米的一居室为例,户型设计完之后约有26平米的使用面积。设计方已经考虑了改造为无障碍户型的可能,其中重点是厨房和卫生间的改造。为满足轮椅的回转需要,卫生间内没有进行区域划分,把淋浴间的推拉门改为浴帘,并且在淋浴区、坐便器都能安装扶手。 在厨房,为了方便轮椅使用者的操作,厨房操作台、吊柜及相应设备高度都相应降低。为了照顾老年人的安全,厨房燃气灶选用熄火保护型燃气灶,这样可以大大减少事故的发生率。 “有些老年人需要分床睡,这种要求在一室的设计中也能得到满足。”何建清告诉记者,新的公租房设计方案更为人性化。 公租房建设像搭积木 北京市住房保障办公室副主任杨武平告诉记者,《图集》发布之后,市、区县政府及其指定机构投资建设、持有的公租房应选用《图集》上的标准户型,而对于社会单位投资的公租房,这一《图集》并非强制性选择,但如果选用,在市规委审批项目时将大大简化。 另据了解,由于标准化《图集》的出台,未来北京市公租房大量采用预制件也成为可能。换句话说,有可能未来的公租房建设如同“搭积木”,不仅主体结构可以大量使用标准构件,连屋内配置也能够大规模应用预制构件。 北京榆构公司总工程师蒋勤俭告诉记者,以一个楼梯为例,使用预制的楼梯构件,从成本上比现场施工浇筑要节省约5%,这对公租房来说能够省下一笔不小的钱。从目前操作来看,包括万科在内的一些商业楼盘使用了较多的预制构件,这一产品能否在公租房项目大范围铺开还不明确。 据媒体从住建委了解到,未来公租房如果要选用预制构件,也会采用招投标的方式来选择供应商。考虑到公租房未来还将放量增长,这一设计标准的推出也有可能带火标准构件这一产业。 |
会员评论











