cottrell & vermeulen architecture: westborough小学
简介:'westborough小学'cottrell & vermeulen architecture,英国,westcliff-on-sea 伦敦建筑事务所cottrell & vermeulen architecture最近完成了位于英国westcliff-on-sea的westborough小学加建项目。建筑 ...
|
'westborough小学'cottrell & vermeulen architecture,英国,westcliff-on-sea 伦敦建筑事务所cottrell & vermeulen architecture最近完成了位于英国westcliff-on-sea的westborough小学加建项目。建筑师在学校外围设计了一个精巧的外廊,在原有的砖墙建筑和新加建的现代建筑之间取得了平衡。学校改建方案力求尽量少的加建和最少的碳排放量。通过各种可再生能源的使用,这个改建方案为周边社区提供了一个极好的示范案例,它有效的减少了90%的能源排放。
外廊 由一系列弯曲的木条组成的复杂柱子支撑着锯齿形的斜屋顶。一半屋顶覆盖了太阳能光电板,另一半则由蓝色的半透明板组成。外廊上还设有一个专门展示节能指标的计数器,不仅让周边社区居民了解了这方面的信息,同时潜移默化的培养了小学生的环保意识。
外廊的屋顶在白天为学生们遮阴
太阳能光电板
主入口
体育馆
走廊
节能计数器
总平面图
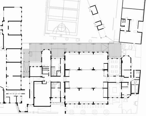
平面图 level 0
剖面图
立面图 项目信息: 开工日期: 2009年11月 面积: 改建面积 948 m2, 广场仓库和外廊面积292 m2 总价: |
已有 0 人参与
会员评论
相关分类
最热文章
最新文章





















