Modo设计的巴伐利亚博物馆木梁支撑方案
|
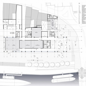
摘要:Modostudio工作室为位于多瑙河沿岸雷根斯堡的巴伐利亚博物馆提出了一个单独的人字形屋顶的设计方案,凸起的建筑拔地而起,分别是两个巨型屋顶的教堂和这一地区的盐谷仓。整体规划还设计了一个匠心独运的花园,在这里人们可以在树荫下吃饭和休息。
Modo设计的巴伐利亚博物馆木梁支撑方案
建筑设计:Modo工作室
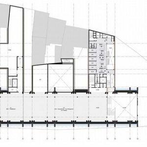
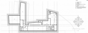
这座城市的景观和历史文化都比较适合选择木质的横梁。树冠支持了屋顶的两层设计,并留下翘曲和分支的横梁。这样一个大跨度双高度体积与两个平行成排的斜角木材就组成了一个单独的大中殿。整座巴伐利亚博物馆代表了巴伐利亚建筑的精髓,也代表了一个中世纪城市的城市文化,更加代表了林木的浪漫主义。这样的木质结构和前两个层次钢筋混凝土制造的博物馆由承重墙和钢筋混凝土土板支撑。博物馆的三角形截面体积是一个伴有两个斜坡的木质结构,且没有封闭起来。建筑所采用的木材是可再生的,这一点充分体现了巴伐利亚的建筑文化。垂直的柱子像树木一样,形成一个菱形向上的攀爬网。
Modo设计的巴伐利亚博物馆木梁支撑方案
Modo设计的巴伐利亚博物馆木梁支撑方案
Modo设计的巴伐利亚博物馆木梁支撑方案
Modo设计的巴伐利亚博物馆木梁支撑方案
Modo设计的巴伐利亚博物馆木梁支撑方案
Modo设计的巴伐利亚博物馆木梁支撑方案
Modo设计的巴伐利亚博物馆木梁支撑方案
Modo设计的巴伐利亚博物馆木梁支撑方案
Modo设计的巴伐利亚博物馆木梁支撑方案
Modo设计的巴伐利亚博物馆木梁支撑方案
Modo设计的巴伐利亚博物馆木梁支撑方案
Modo设计的巴伐利亚博物馆木梁支撑方案
Modo设计的巴伐利亚博物馆木梁支撑方案
Modo设计的巴伐利亚博物馆木梁支撑方案
Modo设计的巴伐利亚博物馆木梁支撑方案
Modo设计的巴伐利亚博物馆木梁支撑方案
Modo设计的巴伐利亚博物馆木梁支撑方案
译者:筑龙网 蝈蝈 |
会员评论









