同济大学:昆明西南国际民族文化艺术中心
简介:摘要: 该项目位于昆明新区CBD核心,西南国际民族 文化艺术中心 设计的主要挑战是当地的文化。设计团队成员包括同济建筑设计研究院的王文胜,达米安泽和Sidney,他们的提案需要建立在一个抽象的路径上,去整合当地的 ...
|
摘要:该项目位于昆明新区CBD核心,西南国际民族文化艺术中心设计的主要挑战是当地的文化。设计团队成员包括同济建筑设计研究院的王文胜,达米安泽和Sidney,他们的提案需要建立在一个抽象的路径上,去整合当地的文化。
鸟瞰图
建筑设计:同济大学建筑设计研究院
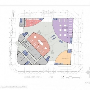
云南省文化厅建造这个西南国际民族文化艺术中心,使它成为一个多功能的国际文化交流的平台,提高对重点文物保护的力度,充分利用丰富的西南国际民族文化艺术中心的资源,深化与东南亚的文化交流与合作。该项目是一个6层高的建筑,一层有35000平方米。在初步分析中,设计师提出两个方面,需要进行重点关注。首先,有关传统服饰、歌舞的不同的当地文化认知,第二,水稻梯田与当地亚热带植物的多样性。文化认同的表现手法对于设计师来说,是一个重要的问题。许多案例表面,越来越多的新文化建筑试图直接模仿传统建筑。大体说来,采用新的结构和材料的新建筑不能成功重复传统建筑。因此,设计师决定不采用传统方法,而是采用一种抽象方式,来贴合现实。地下有机械室和169个停车位的车库,大厦的一楼向公众开放,展示国际文化和艺术作品,并设有一间咖啡厅。这里的建筑被分为四个部分:北方的展览中心,东方的艺术学院进修中心,南方的剧院和西方的艺术工作室。
夜景效果图
效果图
夜景效果图
室内效果图
效果图
室内效果图
立面图
平面图
平面图
平面图
平面图
平面图
剖面图
分析图
分析图
分析图
分析图
译者:毛毛 |
已有 0 人参与
会员评论
相关分类
最热文章
最新文章









