热搜
活动
交友
discuz
建筑业界
首页
Portal
建筑人物
社区
BBS
建筑作品
社群
Group
建筑活动
会员日志
Blog
建筑培训
会员相册
Album
设为首页
收藏本站
建筑论坛
建筑圈子
QQ登陆
立即注册
登录
建筑时空
›
首页
›
建筑作品
›
文化建筑
›
查看内容
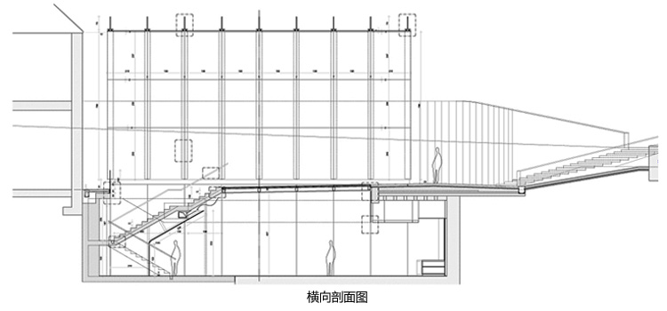
西班牙Tondonia酒厂展馆
2013-8-29 21:57
|
发布者:
ccbuild
|
查看:
228
|
评论: 0
简介:
项目名称:西班牙Tondonia酒厂展馆 建筑师:扎哈哈迪德建筑事务所 项目地点:西班牙 建筑面积:800㎡ 建设时间:2001年-2006年 Tondonia酒厂是西班牙拉里奥哈(La Rioja)地区最古老的和著名的酒厂 ...
项目名称:西班牙Tondonia酒厂展馆
建筑师:扎哈·哈迪德建筑事务所
项目地点:西班牙
建筑面积:800㎡
建设时间:2001年-2006年
Tondonia酒厂是西班牙拉里奥哈(La Rioja)地区最古老的和著名的酒厂之一。为了庆祝其成立125周年,他们决定恢复一个非常古老的酒店,它是由该酒厂创始人建于1910年布鲁塞尔的世界博览会,并拆卸保存至今。
新建筑将先在巴塞罗那的Alimentaria Fair展览,然后运往Rioja的Haro。在那时,一个文化建筑取代它。它是酒厂过去、现在和未来的一块基石。
收藏
邀请
路过
雷人
握手
鲜花
鸡蛋
相关阅读
•
拉奎拉礼堂(Auditorium in L Aquila)
•
PUC-RS图书馆
•
北京某科技博物馆
•
安帕罗博物馆
•
阿尼默领导特许中学
•
科特布斯Weltspiegel剧院
•
伯纳姆馆(Burnham Pavilion)
•
巴赫室内乐厅(Chamber Music Hall )
已有 0 人参与
会员评论
评论
相关分类
住宅建筑
宾馆酒店
科研建筑
工业建筑
商业建筑
医疗建筑
交通建筑
体育建筑
文化建筑
教育建筑
办公建筑
会展建筑
规划设计
室内设计
景观设计
智能工程
建筑保护
新建筑
别墅作品
博物馆作品
更新改造
返回顶部