热搜
活动
交友
discuz
建筑业界
首页
Portal
建筑人物
社区
BBS
建筑作品
社群
Group
建筑活动
会员日志
Blog
建筑培训
会员相册
Album
设为首页
收藏本站
建筑论坛
建筑圈子
QQ登陆
立即注册
登录
建筑时空
›
首页
›
建筑作品
›
办公建筑
›
查看内容
Shipara办公楼
2013-8-29 21:14
|
发布者:
ccbuild
|
查看:
653
|
评论: 0
简介:
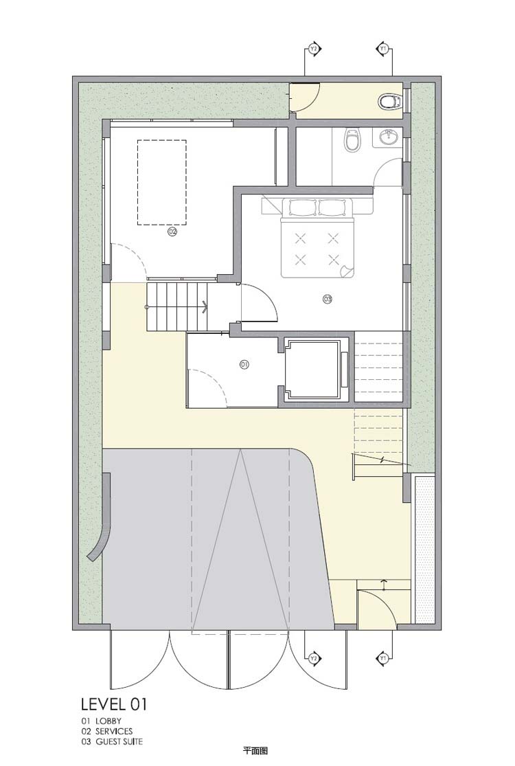
项目名称:Shipara办公楼 建筑师:SDeG 项目地点:印度,班加罗尔 建筑面积:340㎡ 建成时间:2012年 设计团队:Sujit, Balaji 项目团队:Sujit, Balaji, Gayathri, Anju, Darshan, Prabhakar, An ...
项目名称:Shipara办公楼
建筑师:SDeG
项目地点:印度,班加罗尔
建筑面积:340㎡
建成时间:2012年
设计团队:Sujit, Balaji
项目团队:Sujit, Balaji, Gayathri, Anju, Darshan, Prabhakar, Ananya
结构设计: Eco Consultants
承包商:JK Constructions
摄影:Clare Arni
Shipara是一个新的办公楼,位于一个建筑密度很紧张的地区。
该建筑突出的窗户和阳台的拐角均采用弧线,使得办公楼立面更加突出、吸引人。
收藏
邀请
路过
雷人
握手
鲜花
鸡蛋
相关阅读
•
“金色荣耀 ”——金色工作间
•
仙林社区服务中心
•
Phare塔
•
天洋北花园销售中心
•
Hypernuit Offices
•
Thomson木屋翻新扩建项目
•
65301部队接待中心
•
“Alphabeta”创意工作空间
已有 0 人参与
会员评论
评论
相关分类
住宅建筑
宾馆酒店
科研建筑
工业建筑
商业建筑
医疗建筑
交通建筑
体育建筑
文化建筑
教育建筑
办公建筑
会展建筑
规划设计
室内设计
景观设计
智能工程
建筑保护
新建筑
别墅作品
博物馆作品
更新改造
返回顶部