建筑时空 首页 建筑作品 办公建筑 查看内容

中国华电集团总部大厦

2013-8-29 21:13| 发布者: ccbuild| 查看: 2331| 评论: 0

简介:项目名称:中国华电集团总部大厦 设计者:刘淼、陈光、徐伟、费曦强、赵程、翟昊、杨晓钟 建设地点:北京西城区 委托人:华电集团 建筑面积:172 699m 2 完成时间:2008年12月 获奖:鲁班奖、北京建筑 ...

项目名称:中国华电集团总部大厦
设计者:刘淼、陈光、徐伟、费曦强、赵程、翟昊、杨晓钟
建设地点:北京西城区
委托人:华电集团
建筑面积:172 699m2
完成时间:2008年12月
获奖:鲁班奖、北京建筑设计研究院2009年度优秀工程一等奖、首都规划汇报展优秀奖

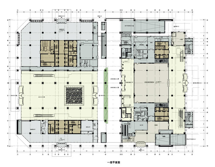
坐落在西单路口的东南,地上170 000m2的的规模使其成为一个名副其实的巨无霸建筑。
分解开始于对城市大环境的分析,建筑的中心基本与东侧国家大剧院对位,一条城市虚轴将这个巨型玻璃体与本建筑串在一起。

建筑首至三层是一个巨型的底盘,在第四层开始分化。建筑被切割成四座单体,每座建筑功能不同,均有各自的竖向交通,因此与城市中的建筑一样,各自独立。

四座建筑共同围合成一个巨大的采光中庭,确切地说应该是一个城市的片断,这里所有的手法区别于室内设计,而是采用城市设计手法,广场、街道、十字中心被明确的限定,40米高的内立面构成城市空间的表皮。城市家具、水池、绿化穿插其中,透过玻璃向东望去,国家大剧院成为城市空间的对景。

在这个片断中,希望营造出城市的活力,人们可以在此自由的交流,可以感受阳光四季,可以找到方向,也可以准确的辨别自己的“家”。

既然是城市中的四座建筑,就允许有各自不同的使用功能,拥有不同的业主,因大而带来的市场风险就此被化解。

收藏 邀请

鲜花

握手

雷人

路过

鸡蛋

相关阅读

已有 0 人参与

会员评论

返回顶部