Niara体育俱乐部
简介:项目名称:Niara体育俱乐部 (Niara Sports Club) 建筑师:Amas4arquitectura 设计团队:Javier Lpez de Uribe, Fernando Zaparan Fermn Antua, Eduardo Garca 委托人:Schola Fundation 项目地点:西班牙 巴 ...
项目名称:Niara体育俱乐部 (Niara Sports Club)
建筑师:Amas4arquitectura
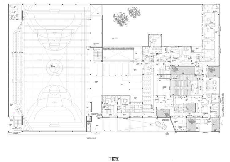
设计团队:Javier López de Uribe, Fernando Zaparaín Fermín Antuña, Eduardo García 委托人:Schola Fundation 项目地点:西班牙 巴利亚多利德 巴塞罗那街道 建成时间:2010年 摄影:Pablo Guillén Llanos & Fernando Zaparaín 项目单体建筑围绕中心小礼堂分别布置了一个分阶儿童教育娱乐休闲区、家长们聚会活动区、办公区、居住区和一个独立的服务区。 建筑场地占据巴塞罗那大街一侧,远眺公园。项目预留了该地区缺失的许多开放空间,譬如连接公共道路和建筑入口的走廊、中心大厅的广场、安静且氛围轻松的小花园。这些空间环环相扣,层次不同也可以观赏对角空间景观。室内外之间的连续性以及较大的空间序列均增强了空间的透视性。
|
已有 0 人参与
会员评论
项目名称:Niara体育俱乐部 (Niara Sports Club)





















