银塔
简介:项目名称:银塔 设计者: 施耐德+舒马赫建筑设计事务所 项目地点:德国德累斯顿 建筑面积: 77 509m 2 设计时间:2008年9月2011年10月 建造时间: 2009年1月2011年12月 银塔大厦于1978年竣工,并在198 ...
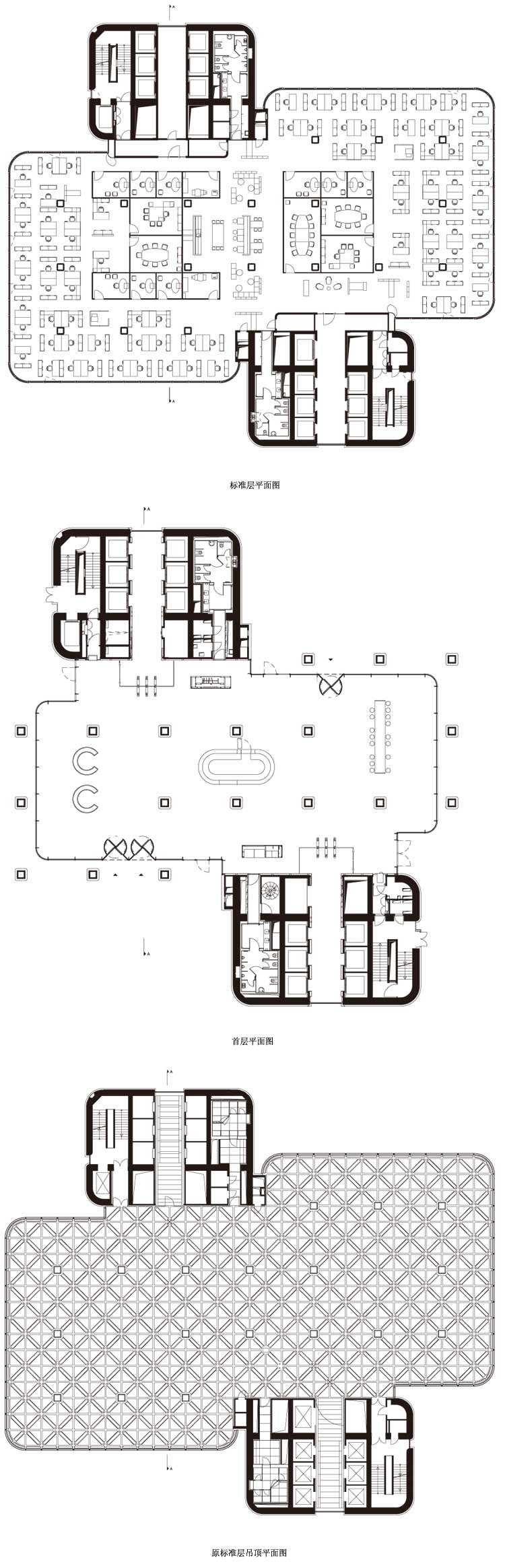
![]() 项目名称:银塔 设计者: 施耐德+舒马赫建筑设计事务所 项目地点:德国德累斯顿 建筑面积: 77 509m2 设计时间:2008年9月—2011年10月 建造时间: 2009年1月—2011年12月 银塔大厦于1978年竣工,并在1980年成为德累斯顿银行的总部。坐落在车站区与Juergen Ponto广场内城的连接处,这座塔楼对城市天际线产生了重要的影响。原建筑由ABB建筑事务所设计。 德累斯顿银行在2009年与联邦德国商业银行合并,由此导致所需营业面积减少,德累斯顿银行原来独占大楼的想法也就此落空。2011年岁末,建筑被一家IVG领衔的国际投资财团买入。建筑的新租户是德国铁路集团。 为将建筑更新并符合当前的技术标准,执行了一项整体的翻新计划,包含以下措施:主体翻新,主要楼层重新组织;交通核心全面翻新;立面元素与屋面区全面翻新;门厅区域重新组织并全面翻新;防火措施、缺陷补正,重新构造非标准层;全面修理低层和设备层内固定室内技术设备,整合原建筑的功能要件。 这座建筑被德国可持续建筑委员会(DGNB)授予了银质证书。
|
已有 0 人参与
会员评论















