情定地中海风格 高富帅50万豪装360平别墅娶新娘
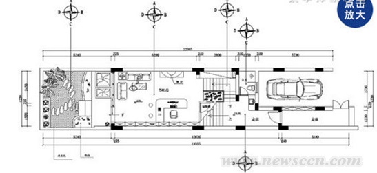
业主是年龄相仿的一对年轻夫妇,男主人开建筑设计院的,女主人是从事销售性质的工作。都喜欢地中海风格,也喜欢田园风格,又不喜欢古板和老气的格调,这栋三层别墅作为婚房的用途,业主对深圳唐人的设计师提出了3大要求:简单、浪漫、个性。 ![]() ![]() 别墅立体图 PART1:男主人常用的地下室设计 使用需求:招待客人、处理工作文件 展示空间:书房、休闲区、公卫、楼梯
除了停放车辆外,地下室还是男主人办公、与朋友约见的地方,要求以简单为主,得体即可。
(1)书房:定制的墙面收纳柜,使得空间看起来整齐完美,同时还不忘在天花门框细节上加入拱形元素,从颜色到细节呼应着地中海风。
(2)休闲区:这是男主人约见朋友的地方,黑瓷砖与白墙面,视觉对比起来相当干净。
(3)公卫:干湿分区,方便客人使用,瓷砖的搭配很有质感,体现出优雅不俗的地中海风。
(4)楼梯:收纳展示一举两得,白色楼梯倍显优雅,白色柜体尤为突出,鹅卵石的元素照应的阳光沙滩海水。 PART2:小两口的一楼公共区域 设计需求:要把地中海风格体现得浓郁些 展示空间:客厅、餐厅、厨房
一楼是小两口公共娱乐区,也是招呼亲朋好友的地方,希望能够把地中海的风格体现出来。简单设计,摒弃繁琐。
(1)电视背景:电视没有一整面铺,而且简单的设计了一个外正方内拱形的框架,与电视柜融合为一体,既有层次感又充分体现了风格。
(2)沙发背景:条纹的沙发是女主人的大爱,特别小资的情怀,蓝白合一的背景瞬间提升和谐度。
(3)餐厅:客厅走出来便是餐厅,白色韩式的家具,一整排的墙面收纳架,解决了大片空白的墙面,也是餐厅收纳的好帮手。
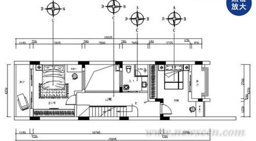
(4)厨房:面积不算大,L型方便使用,颜色是深浅搭配,深色复古的瓷砖更耐久且易打理。 PART3:客人与小孩的二楼卧室区域 设计需求:简单、温馨 展示空间:客房、小孩房、楼梯转角
二楼是客房和小孩房,虽然现在还没有小孩,偶尔有老人过来住,次卧简单温馨就好。
(1)卧室1:长辈偶尔过来小住,韩式的家具米黄的色调显得十分斯文。 |
会员评论























