天然去雕饰:城市避难所
简介: 该项目是一个艺术和汽车发烧友的城市避难所。建筑师、客户和景观设计师紧密的合作完成。场地的中心有一面6英尺高的玻璃渣墙,内外之间浑然天成,极简的植物色彩创造了大型整体纹理效果,大量的植物运用形成私密 ...
|
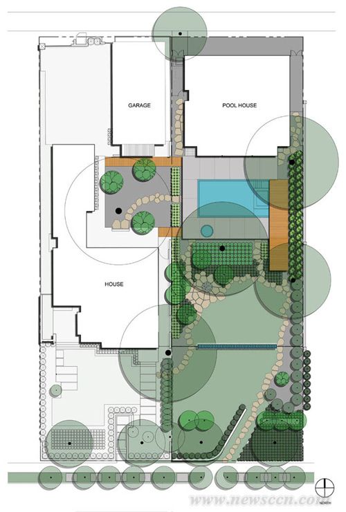
该项目是一个艺术和汽车发烧友的城市避难所。建筑师、客户和景观设计师紧密的合作完成。场地的中心有一面6英尺高的玻璃渣墙,内外之间浑然天成,极简的植物色彩创造了大型整体纹理效果,大量的植物运用形成私密遮蔽的效果。 客户将此地作为家庭和社交聚会场所,可以容纳不同规模的人群。因此场地有两个过渡性良好的景观空间。 在项目中,客户、建筑师和景观建筑师通力合作,设计的想法被贯彻在每一个细节之中。客户喜欢的颜色,蓝色被纳入花园之中,成为主导元素。场地的中间有一个6英尺高的隔断墙。墙体是由不锈钢笼子罩着蓝色的回收玻璃渣组成。内部藏有灯光,会在夜间发出亮光。 内外之间的天然过渡非常重要。泳池坐落在一个混凝土基座上,室内的混凝土地面自然延伸至泳池。泳池边有一个混凝土平台。混凝土平台延伸进一个新的庭院,一片木甲板成为联系的桥梁。最终到达至蓝色的隔断墙,墙体是由不锈钢笼子罩着蓝色的回收玻璃渣组成。强烈色彩,创建了一个非常强烈的视点,成为花园的焦点。泳池旁的混凝土地面有一个小型的喷泉,其微弱的水声创造出了“蝉噪林逾静,鸟鸣山更幽”宁静氛围。大石板路是整个场地的“脉络”,提供过渡空间。这些蜿蜒的路径到达各个目的地。群植植物形成大型统一的纹理效果,并引起数量众多形成了安静隐秘的环境。 1 总平面
2 朝泳池的南边看
3 看甲板和泳池
|
已有 0 人参与
会员评论







