钢结构施工安全防护技术
|
由于钢结构建筑具有重量轻、强度高、抗震性能好、能够合理布置功能区间、施工工期短、回收利用价值高以及综合造价低的特点,近年来,钢结构建筑在我国越来越多。然而,该类工程施工在安全生产方面具有三大特点:一是全员、全过程、全天候处于洞口、临边、高处作业等高度危险的状态:二是各专业施工人员和工程管理人员均处在高度密集的立体交叉作业环境中;三是全部工程构件和施工机具、材料及各种安全防护设施材料均需吊装、吊运。上述三大特点给工程施工的安全管理带来了诸多困难,所以,该类工程的安全管理工作与其它建筑、安装工程相比,显得尤其重要。从安全管理的角度看,国家标准和规范涵盖此部分内容不是很完善,《建筑施工安全检查标准》(JGJ59—99)内无此部分的检查内容。但是,由于安全管理和安全防护设施跟不上,钢结构工程施工事故有呈上升的趋势。笔者结合自己施工深圳地王大厦、深圳赛格广场、深圳华润中心、深圳大梅沙愿望塔、深圳中兴通讯研发大楼、深圳清华信息港、深圳市民中心、深圳会展中心、深圳电视中心、深圳文锦渡客运中心、惠州LNG电厂等项目的钢结构施工管理经验。谈谈在钢结构工程施工方面的安全防护技术措施,供大家参考借鉴。 一、施工设施 (一)走道板 在柱、梁安装后而未设置浇筑楼板用的压型板时,需在钢梁上铺设走道板。铺设方法通常为:用钢管“十”字搭设成网,固定在钢梁的上翼缘,平行的两钢管间距不得大于300mm,上面铺设钢筋网片,铺满铺实,以便于下一节柱梁的施工;并且周边必须设外挑式安全平网,预留洞口做好临边防护。 (二)安全带 1.为防止高处坠落,操作人员在进行高处作业时,必须使用安全带。由于钢结构工程施工时活动范围较大,采用普通安全带很难满足施工要求,应采用带有速差自控器的安全带。速差自控器(也称速差器或防坠器或防坠缓冲器)规格很多,有的活动半径可达30m。 2.人员攀登钢爬梯时,采用坠落自锁装置,解决钢爬梯无保护的问题。自锁装置使用时应注意不能装反;人员攀爬时,自锁装置始终应在人员的上方。 3.两节以上柱固定稳固后,必须拉钢丝绳(或粗棕绳),以便于拴挂安全带。 4.安装钢梁及支撑时,由于通道暂不能搭设,因此安装同钢柱连接的钢梁时,人员应站在操作平台上,安全带挂在防护栏杆上。安装同主梁连接的钢梁及支撑时,主钢梁部位挂安全防护绳,人员将安全带挂在防护绳上行走。 (三)洞口临边防护 对地平面上的电梯井、管道井和边长大于1.5m的洞口周边用脚手架管搭设高度为1.2m的防护栏杆,洞口挂设阻燃型大平网。栏杆外挂设阻燃型密目式立网。2F以上各层边长大于1.5m的洞口、楼梯和临边焊接符合《建筑施工高处作业安全技术规范》(JGJ80-91)要求的钢筋防护栏杆(材料规格尺寸为:立杆φ18mm、上横杆φ16mm、下横杆φ14mm的螺纹钢筋)。栏杆内挂设阻燃型密目式立网。边长大于1.5m的洞口、电梯井口。每隔两层挂设阻燃型大平网(地上首层平网上覆盖阻燃型密目式安全网)。洞口临边防护确保了作业人员的安全,洞口内的平网起到了防止上层物料坠落伤及下层人员的作用。 悬挂安全兜网:平台施工时,在二层平台钢梁间满铺水平安全兜网;安全兜网的周转必须保证上一层施工时下部满铺安全兜网,防止高空坠落。对于悬挑位置作业,施工时架设钢管支撑,悬挂双层安全兜网,防止高空坠落。 (四)钢梁、钢柱上悬挂安全绳 钢梁上悬挂φ6钢丝绳,悬挂高度1.2m,每隔3m架设1.2m脚手架管用于支撑安全绳.或采取花篮螺栓拉紧方式。防止因安全绳过长引起的安全失效。工人在钢梁上行走时,安全带必须悬挂在安全绳上。在吊装钢柱时,为了保证工人在安全状态下摘除吊装钢丝绳,在吊钩处增挂安全绳一道,高度根据现场确定,用于悬挂安全带。临时吊装用爬梯,必须与钢柱连接牢固、稳定,不得晃动,与腹板间距不小于150mm。 安全绳示意图见图1。
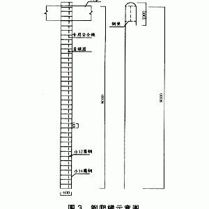
(五)设置垂直通道 为保障施工人员上下通行安全。在钢梁悬挂钢爬梯,爬梯上下两端必须固定牢固;高度不同的钢爬梯应错开布置,爬梯数量现场确定。每段爬梯应设置休息平台。为保障施工人员上下攀爬的安全,在爬梯外侧架设安全绳一道,施工人员佩带特殊安全带(带自锁装置),工人到位后,更换普通安全带,每个钢爬梯附近配备自锁器,以便周转使用。 钢爬梯示意图见图2、图3。
(六)钢柱对接安装操作平台 钢柱分段安装。对接、螺栓紧固时,为保证工人的安全操作,在距第一段钢柱柱顶1.2m位置处架设操作平台。平台数量根据现场施工进度确定,保证周转正常,不影响吊装工作。安装操作平台的设置给焊工营造了一个良好的工作环境,确保焊工的安全操作。该平台拆装方便,安全可靠,给钢柱对接安装、校正、焊缝外观处理、超声波探伤等工序提供了安全生产保障。 操作平台示意图见图4。 |
会员评论




