OSO Studio设计大连葡萄沟金石酒庄
摘要: 建筑选址位于大连外围葡萄沟,靠近金石滩的一片山地上。场地的自然景观之美是最重要的条件,在这里任何特定的建筑风格都是不适合的,并会令建筑陷于文化上的空洞。我们引入一套图解将建筑限定于自然文脉与类型文脉的 ...
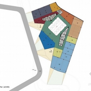
建筑选址位于大连外围葡萄沟,靠近金石滩的一片山地上。场地的自然景观之美是最重要的条件,在这里任何特定的建筑风格都是不适合的,并会令建筑陷于文化上的空洞。我们引入一套图解将建筑限定于自然文脉与类型文脉的交集中,并希望建筑从这个过程中自己浮现出来。首先,我们设计了一个半埋入式体量以符合场地的地貌;建筑的两个边界与场地的等高线重合,另两个边界的角度被小心调节以使建筑看起来“偶然”地适应于整个场地的规划功能布局,尊重了自然文脉并宣称了其自身的存在。然后引入折线轮廓 --- 乡村酒庄建筑的类型学文脉 --- 将唤起人们对于传统酒庄的记忆。在建筑实体上挖出入口并设置平台及绿地。在内部,三条流线 --- 参观者,VIP及货物 --- 独立运行并将任务书所要求的功能空间连通起来。
英文名称:Goldstone winery
|
已有 0 人参与
会员评论




