墨西哥锡那罗亚州——Bioinnova教学楼
摘要: 建筑师:Tatiana Bilbao 地点:墨西哥锡那罗亚州库利亚坎罗萨莱斯 项目面积:6260.0 sqm 项目年份:2012 摄影:Iwan Baan 建筑师提供的项目信息。蒙特雷技术大学是墨西哥全国 ...
建筑师:Tatiana Bilbao 地点:墨西哥锡那罗亚州库利亚坎罗萨莱斯 项目面积:6260.0 sqm 项目年份:2012 摄影:Iwan Baan
建筑师提供的项目信息。蒙特雷技术大学是墨西哥全国最大的私立大学,这所大学的库利亚坎校区委托建筑师设计一座新的生物技术园区建筑,起到连接锡那罗亚州学术环境与商业环境的作用。 锡那罗亚州以其农产品而出名,因此,蒙特雷技术大学希望建造一座不但具有学术研究功能,还能让学生了解新技术发展、发展职业生涯的建筑,同时,建筑还要为企业提供办公空间。
该建筑的设计将学术研究和职业生涯看作一棵成长中的树。与大学相关的所有功能空间都位于建筑的“根部”,而与专业领域相关的空间都位于“根部”之上。根据大学的要求,功能空间都被诠释成开放的几何形状空间。 每一层在技术和美学方面都采用了一种特殊的可持续系统。最后,每个部分都能“生产”能量,从而使建筑本身可以继续运作。
甲方提出的要求是设计一个灵活的中规中矩的矩形空间,所以建筑师决定设计完全相同的楼层,并根据内部功能空间和遮阳方式的不同对不同楼层进行旋转。不过一层除外,一层被旋转了180°,因为一层具有建筑中最重要的功能——加速器和孵化器,学生们在这里可以拥有一个办公室,学校将帮助他们提高和扩展业务,达到盈利的公司的水平。
墨西哥锡那罗亚州Bioinnova教学楼
总平面图
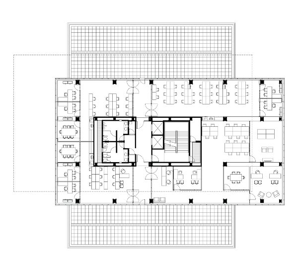
平面图
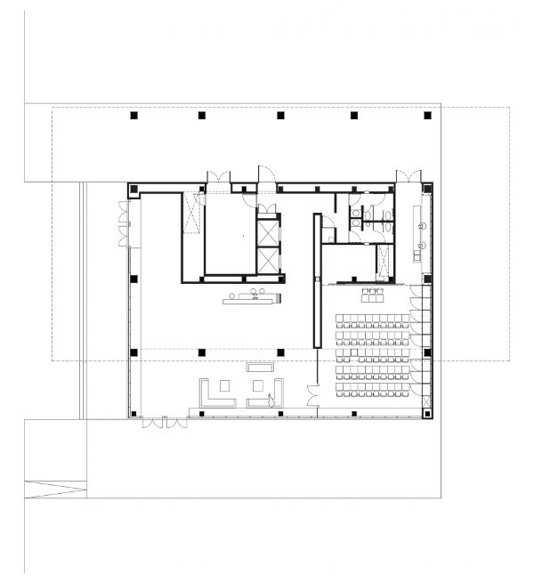
平面图
剖面图 责任编辑:zyy |













