砖砌建筑物风靡 上海高校学生“高大上”公共澡堂
摘要: 摘要: 上海电子技术学院学生公共澡堂,建筑立面使用了空心混凝土砖块,为学生提供隐私。除了工程结构加固、空间重新布局之外,建筑师还试图创建吸引学生的环境。 上海 ...
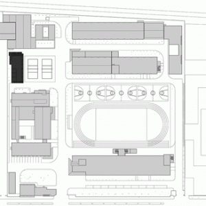
摘要:上海电子技术学院学生公共澡堂,建筑立面使用了空心混凝土砖块,为学生提供隐私。除了工程结构加固、空间重新布局之外,建筑师还试图创建吸引学生的环境。 上海电子技术学院学生公共澡堂 这是由Wuyang Architecture设计的上海电子技术学院学生公共澡堂,建筑立面使用了空心混凝土砖块,为学生提供隐私。原建筑为上海电子技术学院的电力信息教学楼,建于80年代。
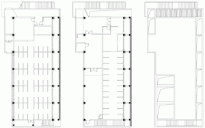
上海电子技术学院学生公共澡堂 该项目拆除了这个二层建筑,仅保留其混凝土框架,原来的墙壁被替换成新的混凝土砖块立面。每个砖块以对角的形式堆砌,形成一个粗犷的穿孔幕墙形式,能根据观看角度改变外立面视觉效果。除了工程结构加固、空间重新布局之外,建筑师还试图创建吸引学生的环境。小型混凝土空心砌块砖形成室内外之间半透明的界面,同时这种材料既便宜又保温隔热。建筑背后和侧面为白色墙壁,其“赤裸”的特性与暗灰色的色调形成对比。
上海电子技术学院学生公共澡堂
上海电子技术学院学生公共澡堂
上海电子技术学院学生公共澡堂
上海电子技术学院学生公共澡堂
上海电子技术学院学生公共澡堂
上海电子技术学院学生公共澡堂
上海电子技术学院学生公共澡堂
上海电子技术学院学生公共澡堂
上海电子技术学院学生公共澡堂
上海电子技术学院学生公共澡堂
上海电子技术学院学生公共澡堂
上海电子技术学院学生公共澡堂
译者 筑龙网 艾比 筑龙网版权作品,转载时请注明来源为筑龙网,否则将追究法律责任。 |
已有 0 人参与
会员评论




