康彬
|
建筑师简介:
康彬,男 ,出生于1971年6月,美国德克萨斯州A&M大学建筑学博士,现工作于欧博设计集团(含法国欧博建筑与城市规划设计有限公司、深圳市欧博设计有限公司、深圳市博艺建筑工程设计有限公司),任职高级建筑师、高级规划师、设计董事。专注于建筑设计、城市设计、健康社区的设计理论及研究方法,参与及主持了深圳、成都、合肥、西安、贵阳等地的大量规划及建筑设计。 项目介绍 1:基本资料 项目定性为综合性滨海商住区,整体以高层建筑为主,着重于基地景观优势的最大化发挥。 考虑基地与蛇口山地域部分的联系,环境创造上充分关注二者之间相互的延续性,使基地的未来形态源于自然环境,并超越自然环境。 “以人为本”的设计思想贯穿始终——创造宜人的生活环境是项目设计的另一目标。人车分流,景观开阔。建筑南北朝向,保证有良好的日照、采光、通风等卫生环境条件,并节约能源。 项目基本资料 总体规划技术经济指标 规划总用地面积:313670平方米 规划总建筑面积:1046840平方米 计容积率建筑面积:925500平方米 不计容积率建筑面积:121340平方米 设计容积率:2.95 绿地率:63.45% 覆盖率:23.00% 一期技术经济指标 首期用地面积:53290平方米 首期总建筑面积:177240平方米 计容积率建筑面积:143240平方米 不计容积率建筑面积:34000平方米 设计容积率:2.69 绿地率:44.30% 覆盖率:13.50% 2:构思特点 基地作为深圳湾填海区的重要组成部分,在住宅开发建设的同时,应兼顾地区整体旅游规划,在设计中强调“山水城”的主题特征。 山 与“红树林自然生态区”的扩展规划相呼应,结合小区内的微观景观形成“绿网”以及心脏地带的空中花园作为“绿核”,使整片区域形成“绿湾”,并与东部的“绿色滨海公园系统”形成延续。 水 立足于城市历史沿革的研究,进一步强化地段三面环海的独特性,从多角色的“湾”空间来构筑地段独有的城市形象,使“湾”的图形特征在蛇口山的衬托下成为地段的主要标志。 城 与西部的蛇口渔港的历史痕迹相映衬,地段将以共生观念,塑造出一个“公共性”与“私密性”兼重的“海市蜃城”,成为新一代滨海社区的典范。 3:总体规划 建筑采用高层点式的韵律错动布局方式,并以六层裙房相连,便于灵活的组合室内外空间,建筑在最大限度地保证最佳朝向的同时,著重创造了建筑的2700海景观赏面。 绿化系统将北侧蛇口山顺应南侧高层建筑布局,形成嵌入式的景观凹带,并由北向南延至海边,从而形成了山水相济的中央景观带。山丘由大至小,由高至低的“退晕”作法,进一步强化了绿色系统的南向流动。 为了创造面向跨海大桥的东界面,同时与基地所在整体契合,由东向西引入海水意向,在4、5号地块之间形成东西向景观通廊。从景观与生态方面的考虑,“水廊”与“山廊”相交汇而形成1主6副的空间体系。 4:景观设计原则 充分塑造自然化的地形地貌特征,引水填岛,景观设计适应地形的变化,强调自然与生态的肌理; 强调绿化公园及绿带与城市的关系,体现带型城市的特征,突出南北向行人尺度的景观轴线。 滨海步行带由东向西分为5个主题湾,依次为入口湾、码头湾、转角湾、山水湾、灯塔湾。 5:一期建筑设计(住宅) 8栋住宅分为29层3栋、28层2栋、27层2栋、14+1层1栋。每栋住宅的主入口均沿小区两条东西向道路设置。 每栋楼户型均设计有直接面向大海的客厅,卧室和阳台,以获得直接的海景。复式住宅都位于每栋楼的顶层。户型的分割有很大的余地,提供将三房或两房改为四房的可能性。 6:建筑细部处理 建筑物立面通过玻璃窗体和有韵律的圆环,形成透明的视觉特征。 顶层复式住宅略往后退,从而屋顶花园就获得足够的空间,同时复式住宅屋顶结合海景主题作了相应的特殊处理。
实景图片
设计图片
总平面
总平面
景观总平面图
总体功能结构规划图
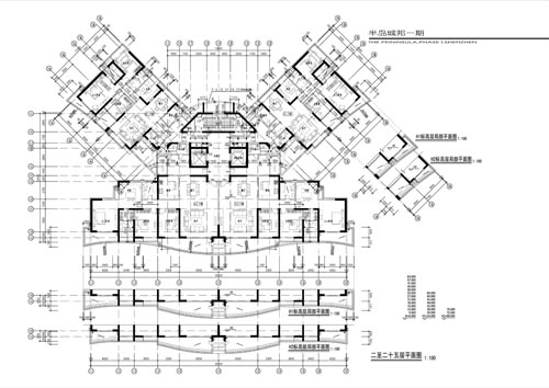
标准层平面
3、5、6、7栋标准层平面 |
会员评论















