两种城镇污水处理工艺及关键设备
简介: 本文结合我公司近年来参与建设的2座有代表性的南方和北方城镇污水处理厂工程,介绍了水解-上向流曝气生物滤池工艺和表曝型氧化沟工艺及关键设备。 Two Kinds of Wastewater Treatment Processes and Key Facilities. Jian Xingchao, Hu Tianyuan, Cheng Hanfei, Qi Ruizhen (Anhui Guozhen Environmental Protection Sci. & Tech. Co., Ltd. No. 669 Changjiang West Road, Hefei, China, 230031) Abstract:The paper introduced hydrolyzation-up flow biological aerated filter process and surface aerator type oxidation ditch process and its key facilitiets. Key words:hydrolyzation, up flow biological aerated filter, surface aerator type oxidation ditch, reverse umbrella aerator, pusher 城镇污水主要为生活污水和以有机废水为主的工业废水的混合污水,其水量较小,一般不超过5万m3/d,但是水质和水量波动较大。由于资金和技术、管理水平等多方面的原因,决定了在城镇污水处理厂必须经济、高效、节能和操作简便。经济即占地面积少以节省征地费,必要的处理设施少以减少总投资;高效即出水在去除有机污染物的同时还能部分地脱氮除磷;节能即尽量采用经济节能型设备和减少处理设施和设备的数量,或采用适当的处理工艺减少剩余污泥排放,从而减少运行费用;操作简便即对运行人员的水平的素质和数量要求不高,也可减少运行费用。很多城镇采用明渠排水,大量雨水流入和地下水渗入,加之城镇生活水平不高等原因决定了污水中有机物浓度较低。因此,必须结合当地污水的水量、水质以及温度、气候、气象、地理、经济等实际情况选择适宜的处理工艺。 一、水解-上向流曝气生物滤池工艺 1、工程背景和工艺简介 2001年10月,通过国际招标,我公司取得了广东新会市东郊污水处理厂(4万m3/d)BOT建设的合同。该污水厂设计指标如表1。 表1 新会东郊污水处理厂进出水指标
经过慎重比较,选择了水解-上向流曝气生物滤池工艺作为主处理工艺。曝气生物滤池(Biological Aerated Filter,简称BAF)技术因有机负荷高(可达6 kgBOD5/m3.d甚至更高)、无需二沉池、占地面积小、投资少、出水水质好、能耗及运行成本低、运行灵活等优点至今已在世界各地有数百座BAF污水处理设施在运行。我国大连马栏河污水处理厂(12万吨/日)是我国第一个采用BAF技术的城市污水处理厂,目前已正常运行两年多,出水水质优于设计水平,并已达到回用水标准。 上向流曝气生物滤池(Up flow BAF,简称UBAF)的工艺原理是在滤池内部装有新型陶粒(或轻质塑料)填料,在其表面生长有生物膜,污水由下至上流过滤料层,池底曝气,使废水中的有机物在好氧菌的作用下降解,同时硝化细菌进行硝化作用。由于陶粒比表面积可达1~2m2/cm3,积累的微生物量可达10~15g/L,因此曝气生物滤池的容积负荷增大,故池容和占地面积可大大降低。曝气生物滤池还可以将生物转化过程中产生的剩余污泥和进水带入的悬浮物截留在滤床内,所以在曝气生物滤池后不需设二沉池。为避免积累的生物污泥和悬浮固体堵塞生物滤池,需定期利用处理后出水和空气进行反冲洗。上向流曝气生物滤池采用气水同向流,使气、水进行极好的均分,防止了气泡在滤层中的凝结,可以更好地避免沟流或短流,氧气利用率高,能耗低;同时,在水、气上升过程中可把底部截留的SS带入滤池深部,这就大大增加了滤池的纳污能力,延长了工作周期。 由于曝气生物滤池工艺占地小,投资省,无污泥膨胀问题,日常运行管理简单,处理效果稳定,且可以模块化结构设计,易于后期扩建,很适合城镇污水厂使用。其主要缺点是对预处理要求高。为延长滤池反冲洗周期,一般要求滤池进水SS在60mg/L以下。为了解决此问题,同时为了污泥减量化和稳定化及进一步减少池容,降低投资,预处理采用了水解工艺,其工艺原理为:待处理污水及滤池反冲洗时脱落的微生物膜由底部进入水解池内,并通过布水系统同污泥床快速、均匀地混合。污泥床类似于过滤层,将进水中的颗粒物质与胶体物质迅速截留和吸附,然后被大量的水解菌分解,许多不溶性的有机物水解为溶解性物质,大分子、难降解的物质转化为易生物降解的物质如有机酸类。同时,生物滤池反冲洗排放的剩余污泥菌体外多糖粘质层水解,细胞壁打开,污泥液态化,重新回到污水处理系统被细菌代谢分解,达到剩余污泥减容的目的。由于水解池的污泥泥龄较长,污泥可以消化稳定。污泥处理采用我公司自产的带式浓缩脱水一体机脱水后外运。 图1 新会东郊污水处理厂流程框图 2、工艺流程 污水由潜污泵提升至旋流沉砂池进水渠,经2台3mm间距的细格栅,进入旋流沉砂池。除砂处理后,经分配井进入4座并联运行的水解池。水解池的作用是最大限度地截留污水中的悬浮物并将其中的部分有机物进行降解,一方面减少后续曝气生物滤池截留SS的量,以延长滤池的反冲洗周期;同时污泥得以减容与相对稳定。为了保证出水的氨氮达标,采用两级曝气生物滤池,分别是C/N和N滤池。水解池的出水经配水槽进入C/N上向流曝气生物滤池进行有机物的降解和部分硝化作用。C/N上向流曝气生物滤池出水再进入后一级的N曝气生物滤池进行硝化处理。在该级滤池中,优势生长着硝化菌和亚硝化菌,这两种细菌对有机物浓度较低的C/N池出水中的氨氮进行硝化。另外,在C/N滤池出水渠道上投加化学除磷药剂,由于速度梯度和扩散作用使脱稳的胶体互相接触生成絮凝体,在N滤池中被截流,通过周期性的反冲洗,将磷排出系统外,达到污水除磷目的。经上述两级生物滤池处理后的出水进行消毒后即可达标排放。 水解池中的污泥定期排入污泥均质池,由螺杆泵提升至污泥浓缩脱水一体机进行脱水处理,脱水后的泥饼外运处置。曝气生物滤池的反冲洗排水排至缓冲池,由泵提升至水解池前的分配井,污泥浓缩脱水一体机的滤后液和脱水机房的地面冲洗废水经管道汇集至集水池,再进入污水处理系统进行处理。 3、主要生产构筑物和设备 水解池4座,并联运行,每座尺寸27000×9450×5300mm,停留时间HRT=2.3h,其中混合区负荷1.8~3.6m3/m2.h,分离区负荷1.8m3/m2.h,水解池本身产生的污泥总量1.6t DS/d。 C/N曝气生物滤池1座,分为8格,其功能是将污水中的碳化有机物进行好氧生物降解,并将污水中的部分氨氮硝化。设计参数:每格尺寸6800×6800×7300mm。配水通过288块滤池专用滤板(1050×1050×110mm)和10368个滤池专用长柄滤头(滤头契型缝隙2.5mm,滤头长度390mm)。出水采用8套栅型稳流器、单堰出水。反冲洗方式排泥。用14800个(膜孔直径∮1mm)无堵塞滤池专用单孔膜曝气器曝气。反冲洗形式为气洗、气水联合、水漂洗,反冲洗周期据实际运行情况而定,一般24h。填料为轻质球型陶粒,体积为1410m3(粒径∮3~6mm),堆积密度0.9~1.0g/cm3。滤料厚3.8m,空塔流速4.96m/h,实际流速9.92m/h,填料层停留时间23min,容积负荷2.84kgBOD5/m3滤料.d,供氧量369.4kgO2/h,反冲洗水速15m/h,反冲洗气速50m/h。 N曝气生物滤池1座,分为8格,其功能是对污水中剩余氨氮进行硝化作用,并对未完全利用完的碳源进行降解,对化学除磷沉析物的截留、过滤。设计参数:每格尺寸6800×6800×5900mm。反冲洗周期一般36~48h。陶粒滤料980m3(粒径∮3~6mm),厚2.6m,空塔流速4.96m/h,实际流速9.92m/h,填料层停留时间16min,容积负荷0.7kgNH3-N/m3滤料.d,供氧量236.5kgO2/h。 鼓风机房主要设备有:3台(2用1备)C/N滤池鼓风机,单机风量40~45m3/min,风压P=7.5mmH2O。3台(2用1备)N滤池鼓风机,单机风量25~30m3/min,风压P=6.0mmH2O。1台滤池反冲洗鼓风机,风量40~45m3/min,风压P=6.5mmH2O。 污泥脱水机房平面尺寸为:25.2m×13.5m。湿污泥量Q=830m3/d(含水率99.4%)。主要设备有带式浓缩脱水一体机2台(同时使用),带宽1.0m。螺杆泵2台,单机流量Q=20~40m3/h。 4、工程投资及主要经济指标 本工程项目总投资为4263万元,污水厂占地面积29亩。本工程投产后正常年份处理水量1460万m3,年用电量283.2万kW.h,絮凝剂年耗用量5.5t,化学除磷药剂年耗用量为516.5t,直接运营成本0.33元/m3污水。 5、两个值得注意的问题 滤料是生物膜的载体,并且有截留悬浮物物质的作用,它直接影响到曝气生物滤池的功效,同时滤料对于工程的一次性投资、运行成本等均有很大影响,一般要求滤料:(1)孔隙率大,比表面积大;(2)密度小,强度大,耐磨损,耐水冲刷;(3)阻力小,过水率高,形状好(以球状为佳);(4)表面粗糙,挂膜好;(5)属惰性物质。常用的滤料材料有:石英砂、陶粒、塑料等,但目前在实际应用中多采用陶粒滤料,其形状多为圆形,考虑到成本和取材方便等因素,现在多采用页岩陶粒。本工程经过招标选择了北京三和联创水务公司生产的陶粒。 反冲洗是保持BAF正常运行的关键环节,它的工作质量对出水水质、工作周期、运行状况的影响都很大。通常BAF一天冲洗一次,不宜过多,否则可能会使生物膜严重脱落,造成填料层内生物量减少,损坏滤料,影响处理效果,增加运行费用。当然,反冲洗过少将达不到冲洗效果。现有的反冲洗工艺也存在着如下问题:(1)采用长柄滤头小阻力配气、配水系统不仅增加了工程造价,而且在滤池面积增大后使配水、配气很难均匀分布,影响冲洗效果。(2)固定式的滤头安装方式一旦损坏,检修困难。 二、表曝型氧化沟工艺及关键设备 1、工程背景和工艺简介 2002年,我公司参与了西北地区某县级市污水处理厂(3万m3/d)的建设,并提供了主要设备。该污水厂海拔1100米,当地最高水温20℃,最低温度10℃,设计指标如表2。 表2 设计进出水指标
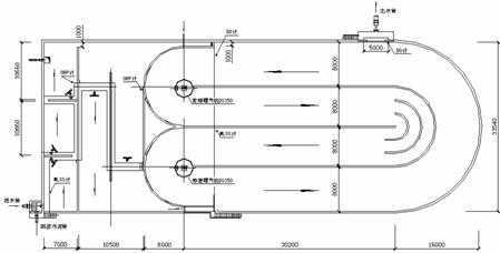
北方城镇污水处理厂要求:①抗冲击负荷能力强;②可低温稳定运行;③污泥易于处置;④运行管理简单方便;⑤造价低廉等。该工程选择了具有脱氮除磷效果的表曝型氧化沟工艺,分两组,单体平面图如图2。该表曝型氧化沟可通过曝气机的推流实现无动力的污泥内回流,完成脱氮除磷。采用我公司生产的大功率倒伞表面曝气机,具有供氧,推动水流作不停的循环流动,使有机物、微生物及氧三者充分混合、接触,防止活性污泥沉淀等功能,可保持沟内断面平均流速为0.3m/s以上,沟底流速不低于0.15m/s。 厌氧池分三格。二沉池回流污泥中的微量硝酸盐在第一格内能很快地被去除,消除了后续工艺对磷去除的不利影响。经过预处理后,在没有溶解氧和硝态氮存在的厌氧条件下,兼性细菌可在后面两格内将溶解性BOD5转化成低分子发酵产物,生物聚磷菌将优先吸附这些低分子发酵物,将其运送到细胞内、同化成细胞内碳源存储物,并导致磷酸盐的释放。经厌氧状态释放磷酸盐的聚磷菌在好氧状态下可吸收、存储超出生长需求的磷量,合成新的聚磷菌细胞、产生富磷污泥,最终通过剩余污泥的排放将磷从系统中出去。 2、氧化沟系统尺寸 本工程设计厌氧池停留时间为1.5h,保证磷的释放达到约80%。工艺尺寸为:L×B×H=32.0×7.0×4.2m3,超高0.6m。取MLSS=4000mg/L,T=10℃,对于中小型污水处理厂,单独处置污泥成本高,本工程设计经氧化沟后污泥相对稳定,确定污泥龄为18d。水力停留时间HRT=12.8h。污泥负荷=0.08kgBOD5/kgVSS.d。缺氧区工艺尺寸为:L×B×H=32.0×10.5×4.2m3,超高0.6m。氧化沟主体部分工艺尺寸为:L×B×H=54.2×32.0×4.2m3,超高0.6m。 总需氧量AOR=氧化有机物需氧+细胞内源呼吸需氧+硝化过程需氧-脱氮过程产氧=184.5kgO2/h,转化为标准状态需氧量SOR =AOR×Cs(20)/(α(βρCs(t)-C)×1.024(t-20))=323kgO2/h。大功率倒伞表面曝气机动力效率取2.1kgO2/kW.h,需配置功率数=323/2.15=154kW。 图2 表曝型氧化沟平面图 3、主要设备和仪表 厌氧池为防止污泥沉降及保证≥0.3m/s的流速,设计搅拌功率密度为7.0W/m3(一般7.0~9.0 W/m3),采用3台我公司生产的GQT022×480(功率=2.2kW)的潜水高速推进器,通过电机、减速箱带动三叶后掠式叶轮的旋转,产生强有力的推流作用,有效防止颗粒状杂物在池壁或池底沉积,兼具搅拌混合和推流的功能。厌氧池设置一台MLSS计及ORP仪,对厌氧段进行在线检测,分析是否存在磷的释放和吸收。通过ORP(氧化还原电位)值的变化及NO3--N的浓度来调整外回流比,使厌氧池处于厌氧环境。实际运行表明:当明显存在磷的释放和吸收时,厌氧池的硝酸盐在0 .5mg/L以下,同时由于系统中溶解氧浓度极低且厌氧氨化作用,造成还原物种COD及NH4+-N浓度积累,氧化还原电位值会突然下降,一般降至-150mv~-250mv左右。 缺氧池设计采用2台我公司生产的DQT055×1800(功率=5.5kW)的潜水低速推进器,功率密度7.6W/m3(一般6.5~8.5W/m3)。采用低速推进器可利用其大侧斜外形叶轮将液体在向前推进的同时,将活性污泥与污水进行充分的搅拌混合,可改善水流条件,防止污泥沉降。混合液回流至氧化沟主体内采用LB4.0×1.0型的内回流控制闸门,控制范围:100%~600%。缺氧池设置一台ORP仪与内回流控制闸门形成闭环控制,通过ORP检测数值确定内回流闸门的开启角度,从而有效保证反硝化处理效果。在缺氧区NO3--N还原成N2,浓度逐渐降至最低,而NH4+-N浓度则因为基质持续推流累积而增高,因此氧化还原电位将下降至-30mv~-45mv左右。 根据计算,本工程选用DS350型大倒伞表面曝气机两台,电机功率90kW,总供氧量 =90×2.1×2 =378 kgO2/h,氧富余55kgO2/h。从节能方面考虑采用一台变频调速曝气机(充氧量90~ 189kgO2/h)、一台恒速曝气机(充氧量189 kgO2/h)。氧化沟主体根据工艺要求,氧化沟前置缺氧区应保证为缺氧状态才能达到预期的反硝化处理效果,因此,靠近内回流闸门的曝气机在进行充氧的同时应尽量避免对回流混合液溶解氧的影响,本工程在该处设置一台DO计,可根据其测得的溶解氧数据,与变频曝气机组成闭环控制回路,通过改变曝气机的转速来改变混合液中的溶解氧值,使其达到最佳工况。出水端为有效保证段溶解氧≥2mg/L以防止二沉池污泥厌氧放磷,设计该处曝气机为恒速,并设置在线检测DO计一台。同时,氧化沟中还设置了一台MLSS计,在线检测污泥浓度。 4、本工艺特点 运行费用低。该氧化沟曝气系统设计总装机容量为180kW,若采用L=9000mm的转碟,动力效率1.6kgO2/kW.h,则需配置8台30 kW的转碟曝气机,总装机容量240kW,比倒伞曝气机有较大幅增加。 设备维修点少,运行管理方便。一座氧化沟只有两台倒伞曝气机,比转碟或转刷曝气机的数量少几倍,设备养护简单。 自控系统简单,氧化沟内一般仅3~4个闭环控制即可满足工艺要求,操作比SBR法容易。 污泥龄长,循环稀释水量大,能承受水量、水质的冲击负荷。对某些含有浓度较高的工业废水的城镇生活污水具有较强的适应能力。 工艺流程简单,运行管理方便。不需要初沉池和污泥消化池。 污泥稳定,可直接进入浓缩压榨一体机进行后续处理。 运行稳定,处理效果好。BOD5平均处理水平可达到95%左右。 5、应注意的问题 为保证氧化沟系统在寒冷条件下能够稳定运行,防止曝气机叶轮和轴在严寒气候下产生冰棱,可对设备采取一定的保温措施:在倒伞曝气机安装平台上,建造方亭,高度不小于3.5米。夏天可遮阳,冬天用加芯保温版材质围起,内用电暖器加热空气保温,可有效改善寒冷气候下的工艺状况;同时可消减噪音,改善污水处理厂环境条件。 在污水厂日常工作中可通过氧化还原电位值的变化来初步判断运行状况,但需注意的是脱氮与除磷之间互为矛盾,控制运行中应兼顾这两个指标,即努力控制氧化沟系统内的硝化和反硝化以降低回流污泥中NO3--N对生物除磷的影响。 三、结语 水解-上向流曝气生物滤池工艺和表曝型氧化沟分别是膜法和泥法生物处理的代表,两种工艺各有特色:前者水力停留时间少,占地小;后者设备少。两者运行维护方便,抗冲击负荷能力强,均适用于城镇污水处理。 参考文献: [1] 刘长荣,Carrousel氧化沟的脱氮除磷工艺设计,中国给水排水2002 Vol.18:67-70。 [2] 邱慎初,丁堂堂,探讨城市污水生物处理出水的总磷达标问题,中国给水排水2002年第9期。 [3] 程寒飞等,广东新会东郊污水处理厂工程设计文本。马鞍山,中冶马院,2002。 [4] 郑俊,吴浩汀,程寒飞,曝气生物滤池污水处理新技术及工程实例,化学工业出版社,2002。 [5] 张杰,曹相生,孟雪征,曝气生物滤池的研究进展,中国给水排水2002年第8期。 [6] 孙群,邹伟国,王国华,高效生物滤池在污水处理中的应用,中国给水排水2002年第2期。 作者简介:蹇兴超,男,30岁,博士,环境工程专业,总工程师,高级工程师。电话0551-5314177,传真5329201,电子邮件jianxingchao@tsinghua.org.cn
更多网友评论 » |
会员评论






